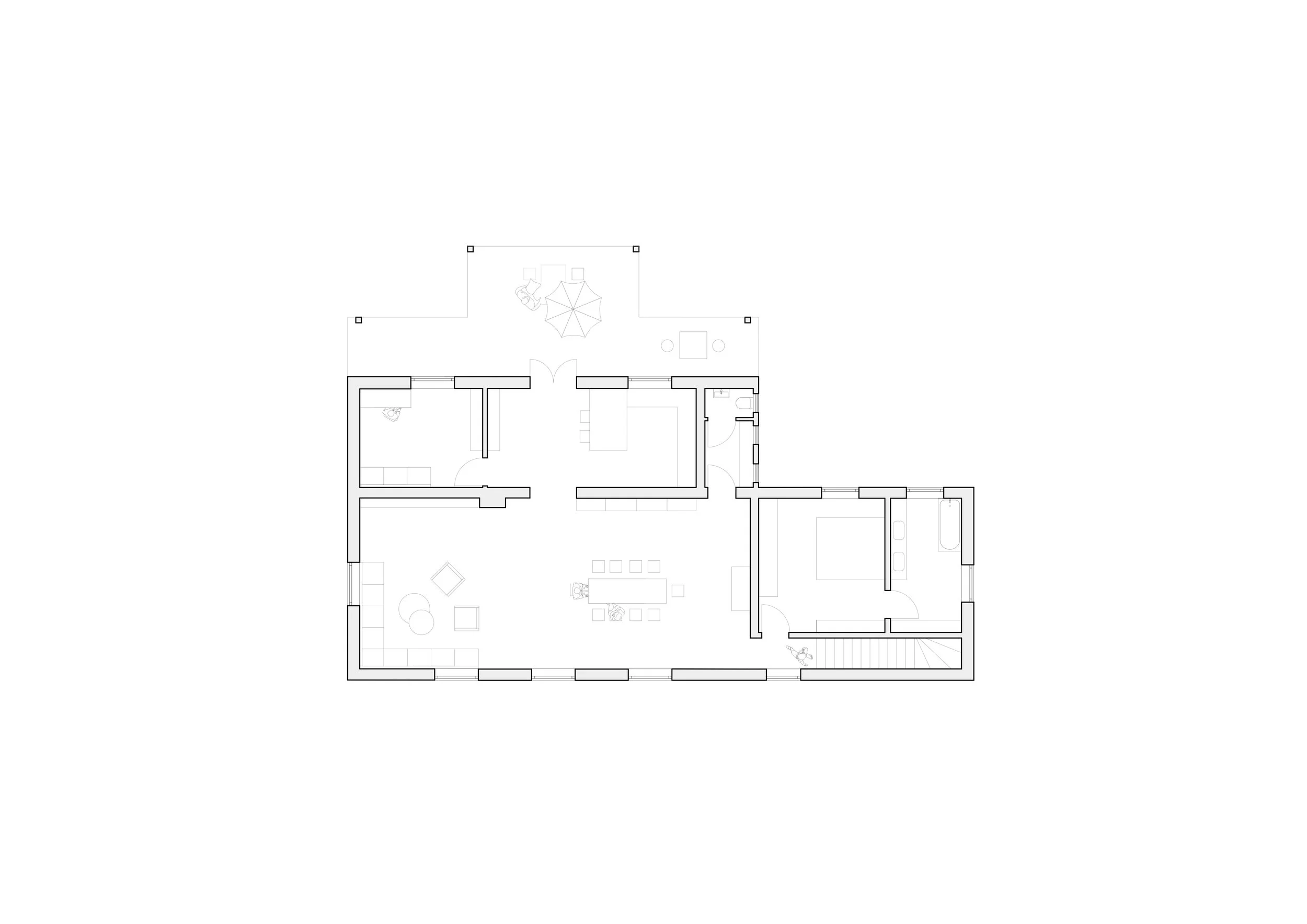
PROJEKTDATEN AUS 1 MACH 2

Ort: Kirchberg/Pielach, Niederösterreich

Auftraggeber: Privat

Umfang: Planung

Status: Studie 2021